


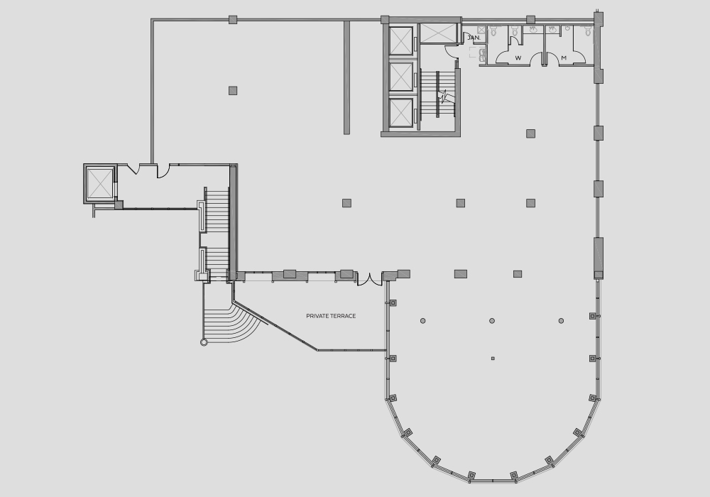
Santana Row Office Space
9,002 Total SF
Highlights
Extensive Glassline
13’ 10” Ceiling Heights
Signage on Olin Avenue
Private Terrace
Exclusive Access
3/1,000 Parking

Let's Talk
Contact us for more information
CBRE
Shane McNultyShane.McNulty@cbre.com408.453.7432
Mike GradoMike.Grado@cbre.com408.453.7409


